

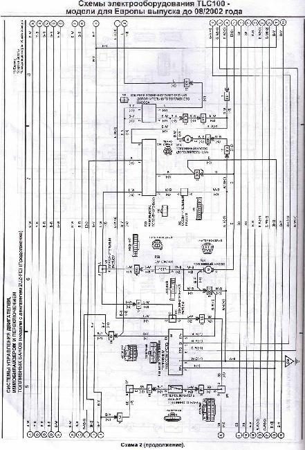
(модели с двигателем 2UZ-FE)


Система зажигания (модели с двигателем 2UZ-FE)



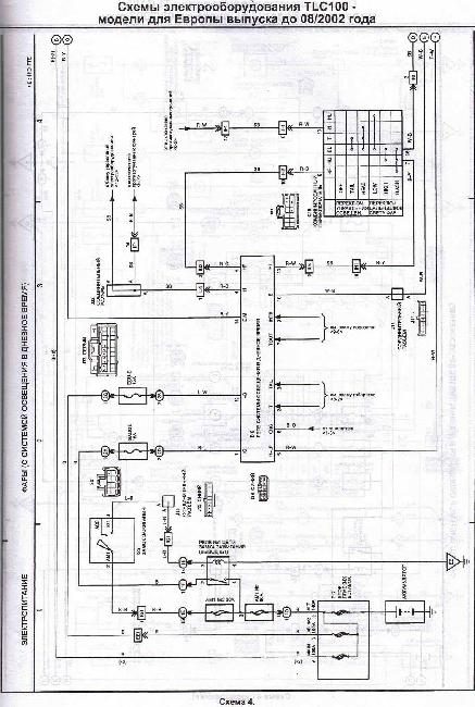
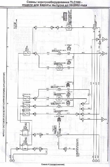
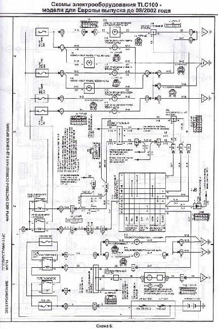
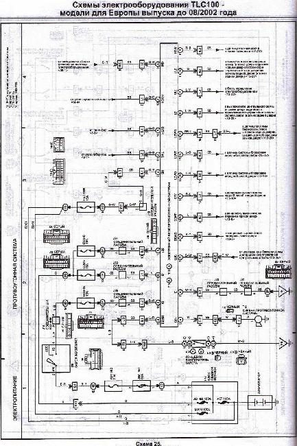
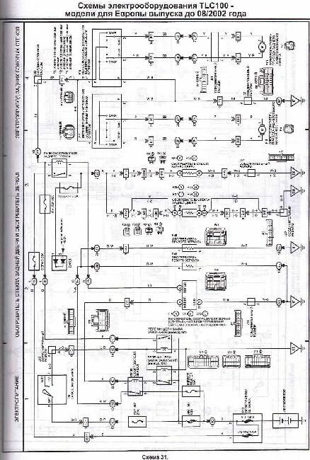
Противотуманные фары. Фары (без системы освещения в дневное время)

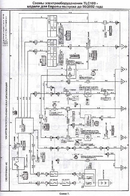
Указатели поворота и аварийная сигнализация



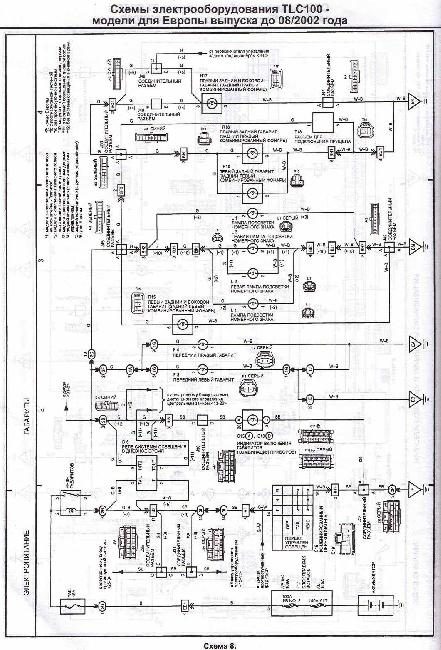
Фонари заднего хода. Стоп-сигналы.


Система регулировки положения фар

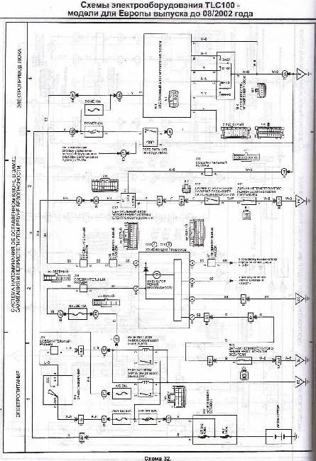
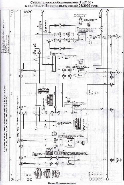
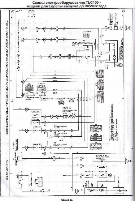
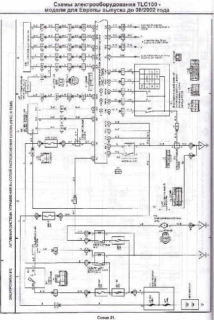
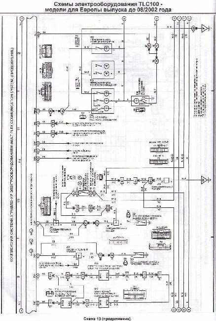
Комплексная система управления электрооборудованием (Multiplex Communication System)


Автоматическая антенна. Лебёдка.

Подушки безопасности и преднатяжители ремней безопасности

Система поддержания скорости (модели с двигателем 2UZ-FE). Система управления АКПП (модели с двигателем 2UZ-FE).

Антиблокировочная система тормозов (ABS)


Система блокировки межосевого дифференциала

Система блокировки переднего/заднего дифференциалов.



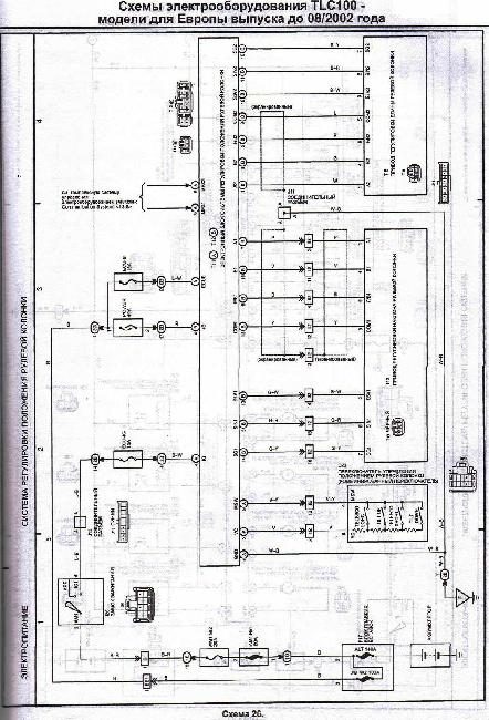
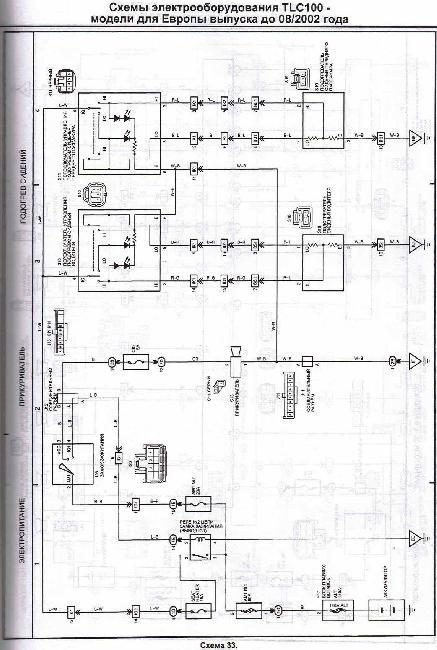
Система регулировки положения рулевой колонки

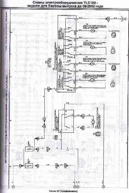
Электропривод системы регулировки положения сидений

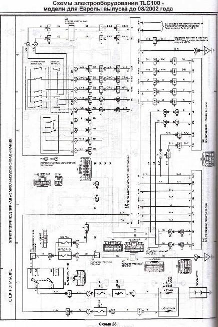
Электропривод зеркал (с механизмом складывания)

Электропривод зеркал (без механизма складывания)

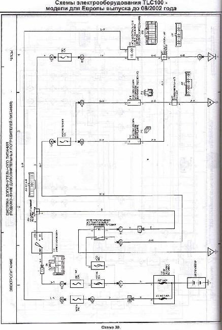
Система дополнительного питания (подключение дополнительных потребителей питания)

Обогреватель стекла задней двери и обогреватель зеркал. Электропривод задних боковых стекол.


Прикуриватель. Подогрев сидений.




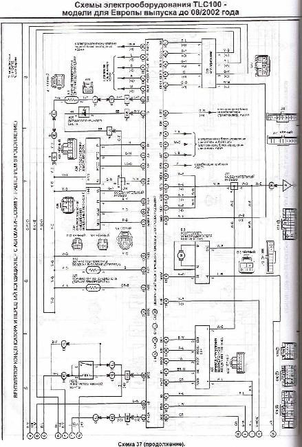
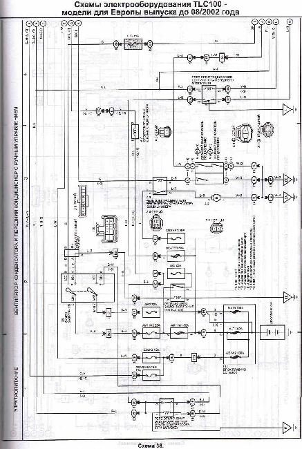
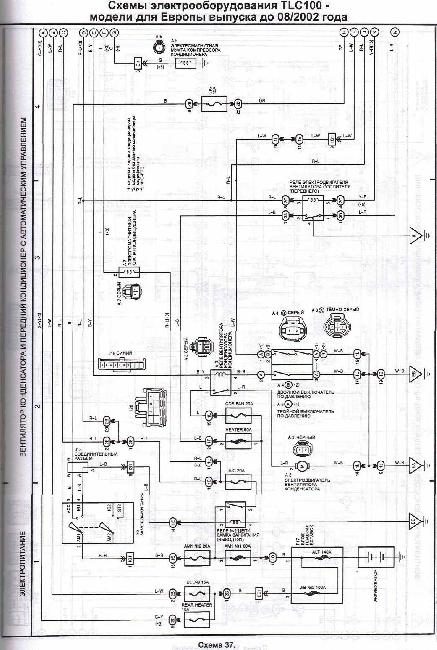
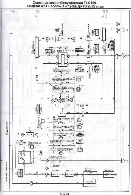
Вентилятор конденсатора и передний кондиционер с автоматическим управлением.

Вентилятор конденсатора и передний кондиционер с ручным управлением.

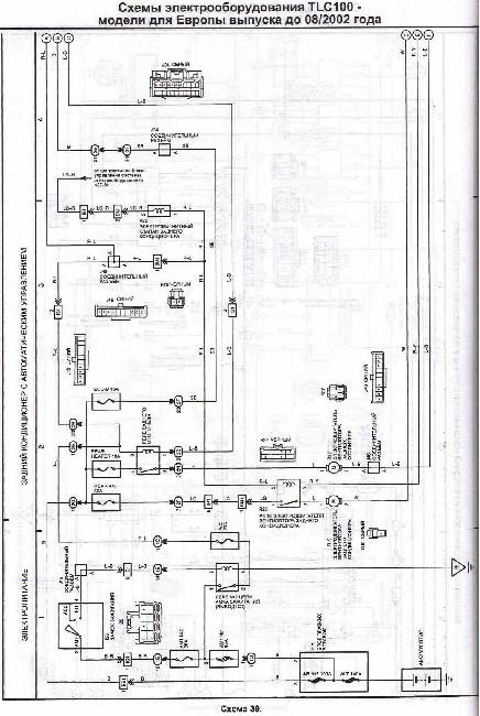
Задний кондиционер с автоматическим управлением.

Задний кондиционер с ручным управлением.
Источник
Электросхемы Ленд Крузер 100 с пояснениями
Незаменимым помощником для каждого автолюбителя является схема электрооборудования Toyota Land Cruiser 100. Для устранения поломки электрических приборов необходимо знать, где находятся провода, реле и защитные элементы.
Схемы электрических соединений – общая информация
Поломка каких-либо компонентов электроцепи требует проверки:
- заряда аккумуляторной батареи;
- надежного контакта в клеммах проводки;
- защитных элементов.
Разъединяя соединительный блок, нельзя держаться за провод, только за пластиковый корпус.
Цвету провода соответствуют маркировка:
- ВLK – провод черного цвета.
- BLU – синего.
- BRN – коричневый провод.
- GRY – серого.
- GRN – провод зеленого цвета.
- LT – все светлые цвета.
- NCA – неопределенные.
- ORG – оранжевые.
- PNK – провод розового цвета.
- PPL – провода пурпурного цвета.
- RED – красного.
- TAN – золотистого.
- VIO – фиолетовые провода.
- WHT – провод белого цвета.
- YEL – провод желтого цвета.
Возможные обозначения соединения участков электрической цепи:
- АТ – АКПП.
- Д/В – выключатель.
- К/В – климатическое оборудование.
- К/Л – световой датчик контроля.
- ПР-ЛЬ – защитные элементы (ПР).
- Э/М – клапан электромагнитный.
- DLC – разъем диагностики.
- DRL – ходовые, дневные световые лампы.
- ECM – электрический модуль.
- ECU – бортовой компьютер.
- EGR – элементы возвращения и очистки выхлопа.
- EVAP – элементы испаряющегося горючего.
- IAT – воздушный градусник.
- IGN – цепь зажигания.
- IND – световой датчик контроля.
- J/B – распределительный блочок.
- J/C – электрические соединители.
- R/B – распределитель защитных элементов.
- VSS – скоростемер.
- VSV – высоковольтное переключающее устройство.
- FLOOR A/T – напольное расположение кулисы трансмиссии.
- COLUMN A/T – расположение кулисы на рулевой колонке.
- NORM – стандартный режим трансмиссии.
- PWR – скоростной режим трансмиссии.
Управление системой зажигания:
- OFF – выключение.
- LOCK – блокиратор рулевого управления.
- ACC – режим стоянки.
- ON – включение.
- START – пуск.
- RESUME/ACCEL – реверс/скорость.
- SET/COAST – установка/движение на нейтралке.
- CANCEL – отмена всех настроек.
Вентиляционная система печки:
- OFF – выключение.
- LO – режим низкой скорости.
- M1 – режим 1.
- M2 – режим 2.
- HI – режим высокой скорости.
- AC – климатическое оборудование.
- BATT – источник питания.
- +B – соединение с положительным номиналом.
- EGR – циркуляция выхлопа.
- GND – соединение с отрицательным номиналом.
- HT – нагрев лямбда-зонда.
- KNK – детонация.
- OIL – ДДМ.
- OX – лямбда-зонд.
- SL – электро-клапан.
- SP – спидометр.
- STA – стартер.
- TAC – измеритель оборотов.
При обслуживании АКБ нельзя допускать неправильного расположения клемм, так как могут выйти из строя электрические приборы авто.
Схема предохранителей и реле Toyota Land Cruiser 100
Данные таблицы и чертежи предназначены для автомобилей Тойота с 1997 до 2007 года выпуска.
| Защищаемые цепи | Напряжение | ПР |
| ALT-S – цепь зарядки | 7.5 A | № 1 |
| АМ1 – запуск | 20 A | № 2 |
| Климатическое оборудование | 20 A | № 3 |
| Климатическое оборудование | 10 A | № 4 |
| SEAT HTR – цепь подогрева автокресел | 15 A | № 5 |
| Топливо-подогреватель | 20 A | № 6 |
| Подогрев наружных зеркал | 15 A | № 7 |
| Система очистки фар | 20 A | № 8 |
| CDS FAN – отсутствие цепи | 20 A | № 9 |
| EF1 or ECD цепь топливного впрыска, бензонасоса | 20 A | № 10 |
| Сигнал автомобиля | 10 A | № 11 |
| Заслонка дроссельная | 15 A | № 12 |
| Автомагнитола | 20 A | № 13 |
| HAZ-TRN – аварийка и повороты | 15 A | № 14 |
| АМ2 – цепь пуска мотора, уменьшение токсичности выхлопа, компоненты JGN | 30 A | № 15 |
| ECU-B1 – блокировка замков, электрические стеклоподъемники, цепь обогрева стеклоочистителей, беспроводный пульт управления, задняя противотуманка, кондиционеры | 10 A | № 16 |
| Левый световой прибор дальнего света | 20 A | № 17 |
| Передние туманные огни, правый световой прибор дальнего света | 20 A | № 18 |
| Левый световой прибор ближнего света | 10 A | № 19 |
| Правый световой прибор ближнего света, регулировка света фар | 10 A | № 20 |
| Автоматическая регулировка зеркал | 10 A | № 21 |
| Ремни безопасности, подушки SRS | 15 A | № 22 |
| Цепь прикуривателя, автомагнитола с антенной | 15 A | № 23 |
| Система подачи горючего, понижения токсичности выхлопных газов, индикатор зарядки, подушки SRS | 10 A | № 24 |
| Свет в салоне | 10 A | № 25 |
| AHC-IG – отсутствие цепи | 20 A | № 26 |
| DIFF – блокировка полного привода | 20 A | № 27 |
| Эуммерные сигналы, приборная панель. Цепь питания датчиков, индикаторов предупреждения, кондиционеров, трансмиссии, света заднего хода, лебедки, дистанционного пульта | 15 A | № 28 |
| Система омывателя и очистки стекол | 20 A | № 29 |
| Холостой ход двигателя | 7.5 A | № 30 |
| Передние противотуманные огни | 15 A | № 31 |
| Стоп-сигналы | 15 A | № 32 |
| Кондиционер | 30 A | № 33 |
| Подогрев заднего стекла | 20 A | № 34 |
| ЕСU-В – регулировка рулевого управления | 15 A | № 35 |
| Лампы номерных знаков, стояночные огни | 15 A | № 36 |
| АНС-В – отсутствие цепи | 15 A | № 37 |
| Система диагностики | 10 A | № 38 |
| RR HTR – кондиционер | 10 A | № 39 |
| Антенна, блокировка тормозов | 15 A | № 40 |
| PWR OUTLET – обзор мощности | 15 A | № 41 |
| ABS №1 – блокировка тормозов | 40 A | № 42 |
| АНС – отсутствие цепи | 50 A | № 43 |
| АСС – все компоненты PRW OUTLET | 50 A | № 44 |
| ABS №2 – блокировка тормозов | 40 A | № 45 |
| STARTER – пуск силового агрегата | 30 A | № 46 |
| POWER – система централизованной блокировки замков, стеклоподъемников, люка | 30 A | № 47 |
| MAIN – цепь ПР | 100 A | № 48 |
| ALT – цепь ПР | 140 A | № 49 |
| J/B №2 – цепь ПР | 100 A | № 50 |
| AM №1 – пуск двигателя, чистка фар, цепь ПР АС | 80 A | № 51 |
| HTR | 60 A | № 52 |
| GLOW – система накала | 80 A | № 53 |
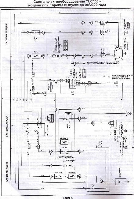
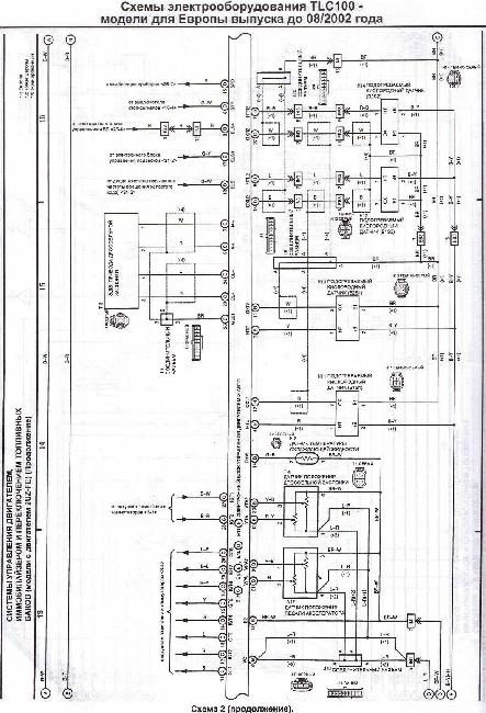
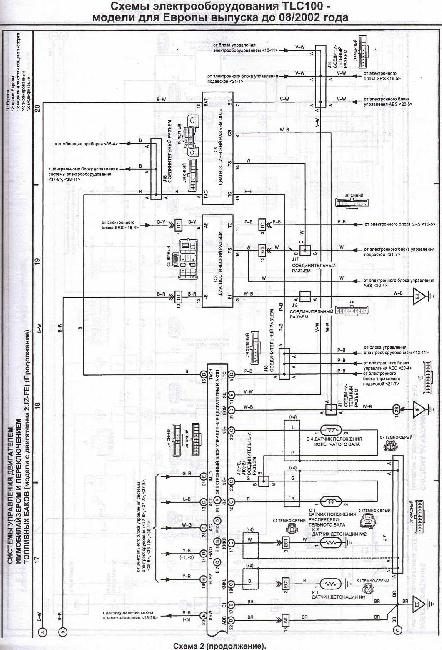
Схемы электрооборудования Toyota Land Cruiser 100
Электросхема Ленд Крузер 100 – управление дизельным силовым агрегатом 1HD-FTE:

Электросхема распределения заземления Land Cruiser 100:

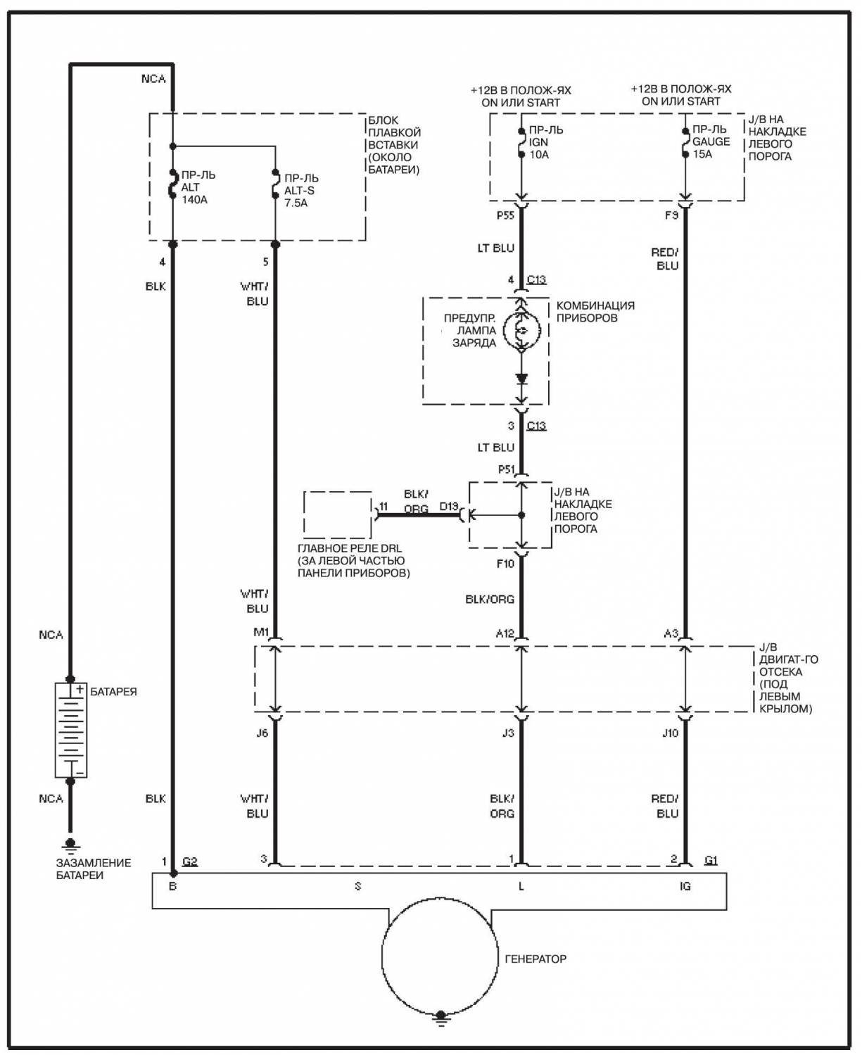
Схема системы зарядки АКБ:

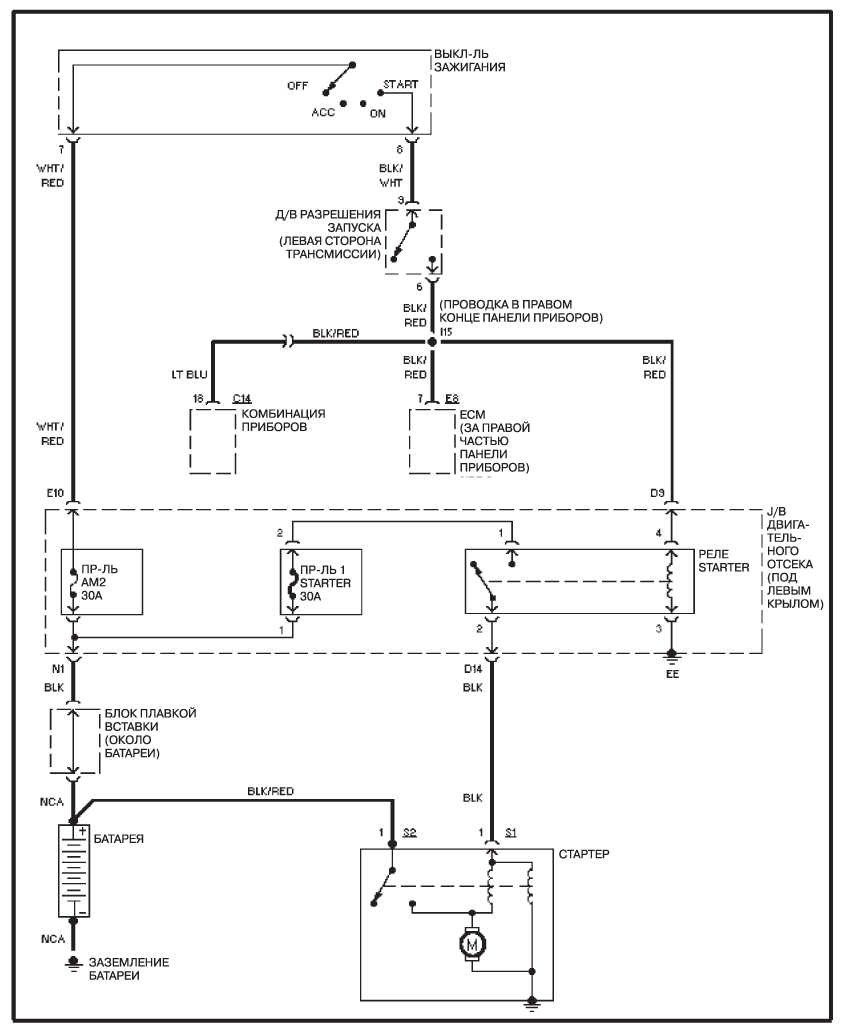
Схема системы запуска двигателя:

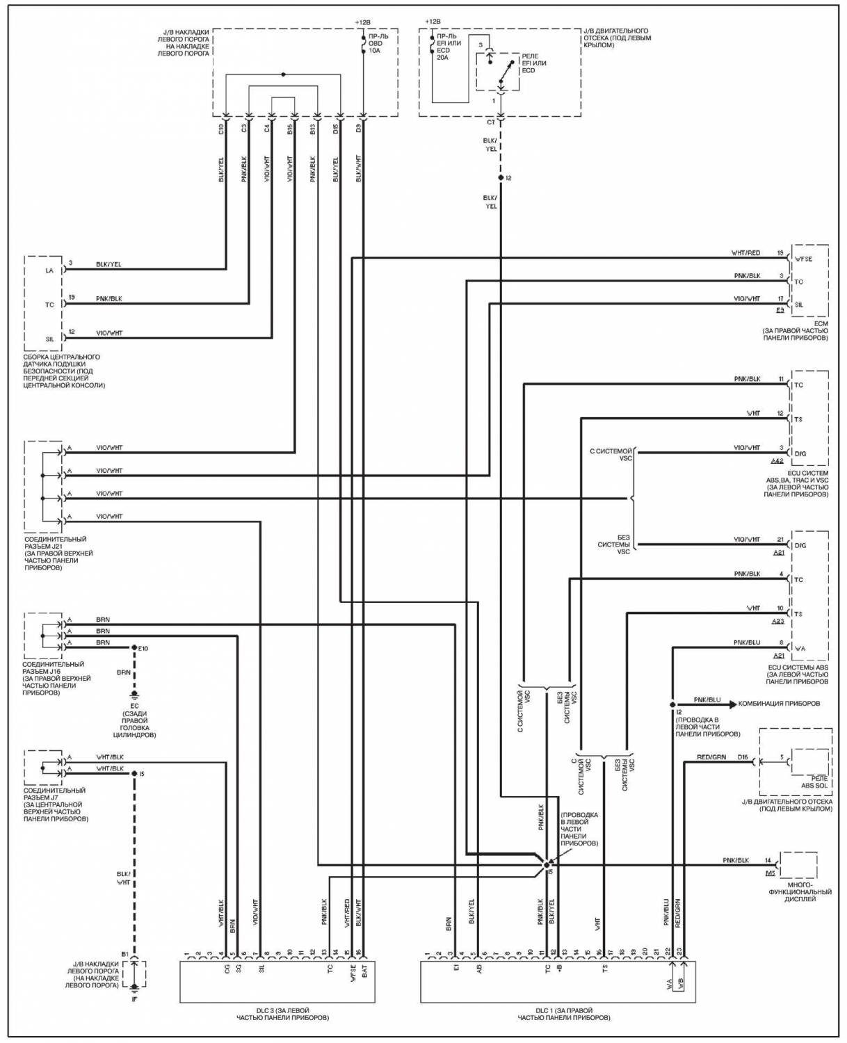
Схема диагностических разъемов:

Схема бортового компьютера:


Для устранения неисправностей в электрической цепи на автомобиле Toyota Land Cruiser 100 лучше обратиться на СТО к специалисту.
Источник

Вам также может понравиться
